联系电话:
0551-63495066
产品结构特征
带导流孔平板闸阀有单闸板和撑开式双闸板两种结构,闸板上有一与阀体通道相同口径的通孔,当阀门开启时,闸板上的导流孔与阀体通道形成一直管道,便于介质流通及管道的通球清扫,防止介质沉积,影响管道的输送能力。
采用标准
设计规范 | 结构长度 | 连接法兰 | 试验与检验 | 压力-温度 | 产品标识 |
JB/T5298 | JB/T5298 | JB/79 | JB/T5298 | GB9131 | GB/T12220 |
API6D | API6D | ANSI-16.5 | API6D | ANSI B16.34 | MSS SP-25 |
性能规范
设计等级 | 常温下试验压力(MPa) | 适用温度℃ | 适用介质 | |||||||
壳体 | 左密封 | 左密封 | 低压密封 | “G”型 | “D”型 | 普通型 | “抗硫”型 | “基本”型 | ||
公称压力PN(MPa) | 1.6 | 2.4 | 1.76 | 1.76 | 0.6 | -29~50 | -45~21 | -2~121 | H2S和CO2总含量大于500mg/m2的介质 | 石油天然气、水等 |
2.5 | 3.75 | 2.75 | 2.75 | 0.6 | ||||||
4.0 | 6.0 | 4.4 | 4.4 | 0.6 | ||||||
6.4 | 9.6 | 7.04 | 7.04 | 0.6 | ||||||
磅级Lb | 150 | 3.0 | 2.2 | 2.2 | 0.6 | |||||
300 | 7.7 | 5.6 | 5.6 | 0.6 | ||||||
零件材料
阀门/阀盖 | WCB | WC6 | A352-LCB | A351-CF8M |
闸板 | 2Cr13+ENP | 20CrMoV+STL | ANSO410+ENP | ANSI316+ENP |
阀杆 | 2Cr13 | 2Cr13 | A182-A6a | A182-A316S |
阀座 | 25+PTFE | 20CrMoV+STL | A105+PTFE | A182-F316+PTFE |
填料 | NBR/FPM | 柔性石墨/Flexible Graphite | 聚四氟乙烯/PTFE+FPM | |
垫片 | - | |||
螺栓 | 35 | 35CrMo | A193-B7M | A193-B8 |
适用介质 | 水、油口、蒸汽 | 蒸汽、油品 | 丙烷、乙烯 | 硝酸类 |
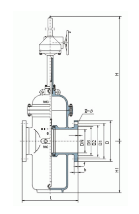
外形结构图

连接尺寸
1.6MPa | DN | L | D | D1 | D2 | Do | f | b | H | H1 | n-Φd |
凸面法兰 RF | 50 | 178 | 160 | 125 | 100 | 250 | 3 | 16 | 584 | 80 | 4-Φ18 |
65 | 190 | 180 | 145 | 120 | 250 | 3 | 18 | 634 | 95 | 4-Φ18 | |
80 | 203 | 195 | 160 | 135 | 250 | 3 | 20 | 688 | 100 | 8-Φ18 | |
100 | 229 | 215 | 181 | 155 | 300 | 3 | 20 | 863 | 114 | 8-Φ18 | |
125 | 254 | 245 | 210 | 185 | 350 | 3 | 22 | 940 | 132 | 8-Φ18 | |
150 | 267 | 280 | 240 | 210 | 350 | 3 | 24 | 1030 | 150 | 8-Φ23 | |
200 | 292 | 335 | 295 | 265 | 350 | 3 | 26 | 1277 | 168 | 12-Φ23 | |
250 | 330 | 405 | 355 | 320 | 400 | 3 | 30 | 1491 | 203 | 12-Φ25 | |
300 | 356 | 460 | 410 | 375 | 450 | 4 | 30 | 1701 | 237 | 12-Φ25 | |
350 | 381 | 520 | 470 | 435 | 500 | 4 | 34 | 1875 | 265 | 16-Φ30 | |
400 | 406 | 580 | 525 | 485 | 305 | 4 | 36 | 2180 | 300 | 16-Φ30 | |
450 | 432 | 640 | 585 | 545 | 305 | 4 | 40 | 2440 | 325 | 20-Φ34 | |
500 | 457 | 705 | 650 | 608 | 305 | 4 | 44 | 2860 | 360 | 20-Φ41 | |
600 | 508 | 840 | 770 | 718 | 305 | 5 | 48 | 3450 | 425 | 20-Φ41 | |
700 | 610 | 910 | 840 | 788 | 305 | 5 | 50 | 3960 | 460 | 24-Φ41 | |
800 | 660 | 1020 | 950 | 898 | 305 | 5 | 52 | 4550 | 512 | 24-Φ41 | |
900 | 711 | 1120 | 1050 | 998 | 250 | 5 | 54 | 5250 | 565 | 28-Φ48 | |
1000 | 811 | 1250 | 1170 | 1110 | 250 | 5 | 56 | 5870 | 630 | 28-Φ18 | |
2.5MPa | 50 | 178 | 160 | 125 | 100 | 250 | 3 | 20 | 584 | 80 | 4-Φ18 |
凸面法兰 RF | 65 | 190 | 180 | 145 | 120 | 300 | 3 | 22 | 634 | 95 | 8-Φ18 |
80 | 203 | 195 | 160 | 135 | 350 | 3 | 22, | 388 | 100 | 8-Φ18 | |
100 | 229 | 230 | 190 | 160 | 350 | 3 | 24 | 863 | 114 | 8-Φ23 | |
125 | 254 | 270 | 220 | 188, | 350 | 3 | 28 | 940 | 132 | 8-Φ25 | |
150 | 267 | 300 | 250 | 218 | 400 | 3 | 30 | 1030 | 150 | 8-Φ25 | |
200 | 292 | 360 | 310 | 278 | 450 | 3 | 34 | 1277 | 168 | 12-Φ25 | |
250 | 330 | 425 | 370 | 332 | 500 | 3 | 36 | 1491 | 203 | 12-Φ30 | |
300 | 356 | 485 | 430 | 390 | 305 | 4 | 40 | 1701 | 237 | 16-Φ30 | |
350 | 381 | 550 | 490 | 448 | 305 | 4 | 44 | 1875 | 265 | 16-Φ34 | |
400 | 406 | 610 | 550 | 505 | 305 | 4 | 48 | 2180 | 300 | 16-Φ34 | |
450 | 432 | 660 | 600 | 555 | 305 | 4 | 50 | 2440 | 325 | 20-Φ34 | |
500 | 457 | 730 | 660 | 610 | 305 | 4 | 52 | 2860 | 360 | 20-Φ41 | |
600 | 508 | 840 | 770 | 718 | 305 | 5 | 56 | 3450 | 425 | 20-Φ41 | |
700 | 610 | 955 | 875 | 815 | 305 | 5 | 60 | 3960 | 460 | 24-Φ48 | |
800 | 660 | 1070 | 990 | 930 | 305 | 5 | 64 | 4550 | 512 | 24-Φ48 | |
900 | 711 | 1180 | 1090 | 1025 | - | 5 | 66 | 5250 | 595 | 28-Φ54 | |
1000 | 811 | 1305 | 1210 | 1140 | - | 5 | 68 | 5870 | 660 | 28-Φ48 |













