联系电话:
0551-63495066
产品详情
产品概述
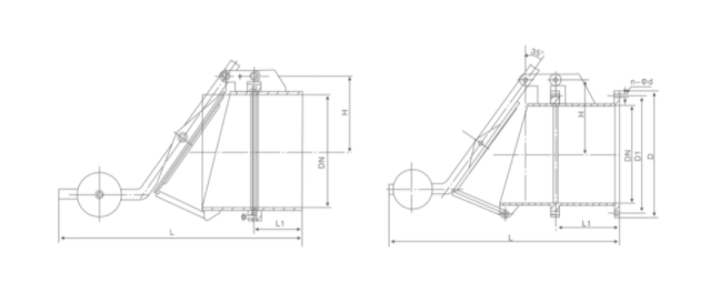
泄爆阀由阀体、爆破膜、支持器、阀盖、重锤等零件组成。爆破膜装在夹持器中间,与阀体用螺栓连接。系统超压时,爆破膜破裂。瞬间泄压,阀盖弹起后在重力作用下复位。本阀在更换爆破膜时需要向上掀起阀体及夹持器。爆破膜由用户根据工艺特性自备,主要用于建材、冶金、石油、化工等领域。
主要技术参数
公称通径 | DN(mm) | 300~1000 |
适用于爆破计算压力(绝) | PN(MPa) | 0.1 |
强度试验压力 | 1.5 | |
适用温度 | ≤200℃ | |
适用介质 | 压缩易爆气体 | |

主要外形及连接尺寸
| DN | D | n-φd | D1 | b | L | L1 | H | 重量(kg) |
| 300 | 440 | 12-φ22 | 395 | 16 | 880 | 250 | 250 | 52 |
| 350 | 490 | 12-φ22 | 445 | 16 | 907 | 250 | 275 | 69 |
| 400 | 540 | 16-φ22 | 495 | 16 | 1010 | 250 | 300 | 77 |
| 450 | 595 | 16-φ22 | 550 | 16 | 1060 | 252 | 325 | 83 |
| 500 | 645 | 20-φ22 | 600 | 20 | 1180 | 300 | 370 | 112 |
| 600 | 755 | 20-φ26 | 705 | 20 | 1280 | 300 | 420 | 152 |
| 700 | 860 | 24-φ26 | 810 | 20 | 1390 | 300 | 470 | 193 |
| 800 | 975 | 24-φ30 | 920 | 20 | 1480 | 300 | 520 | 165 |
| 900 | 1075 | 24-φ30 | 1020 | 20 | 1590 | 350 | 600 | 335 |
| 1000 | 1175 | 28-φ30 | 1120 | 20 | 1680 | 350 | 650 | 375 |













