联系电话:
0551-63495066
蜗轮式盲板阀
技术参数
公称通径:DN300~2000mm
公称压力:PN0.05~0.25MPa
适用温度:-20℃~300℃
适用温度:200℃(硅橡胶)300℃(氟橡胶)
驱动方式:电动、液动、气动、电液动
阀体材质:碳钢、橡胶、铬钢
设计标准:API 600、API6D、ASME B16.34、GB/T 12234
结构长度:ASME B16.10、API6D、GB/T 12221
连接标准:ASME B16.5、ASME B16.47、GB/T 9113、JB/T 79、HG/T 20592
压力试验:API 598、GB/T 13927、JB/T 9092
压力-温度等级:ASME B16.34 、GB/T 12224
产品详情
产品概述
蜗轮式盲板阀由左阀体、中阀体、右阀体、扇形盲板、丝杆螺母付、不锈钢补偿器、两个蜗轮传动机构等组成。它是通过三根丝杆连成一体,并把三个阀体分别固定在底座上,构成一个刚性结构体。中阀体与右阀体用不锈钢膨胀管联接,左、中阀体分别用三根两端带左右梯形螺纹的丝杆联接,将三根丝杆同时作正向(或反向)旋转,则左、中两阀体得到压紧(或分离)。三根丝杠中上面一根丝杆中间装有盲板,盲板绕该轴心旋转。下面两根丝杠在同样的部位上安装有盲板的定位块,盲板旋转时可以防止盲板漂移,避免密封胶圈擦伤。其中一根上装有蜗轮传动机构,实现松开夹紧阀体的目的。
主要性能参数
| 公称压力MPa | 0.25 | 0.15 | 0.10 | 0.05 |
| 密封试验压力MPa | 0.275 | 0.165 | 0.11 | 0.055 |
| 强度试验压力MPa | 0.40 | 0.225 | 0.15 | 0.075 |
| 驱动源 | 压缩空气0.4-0.6MPa ;油压压力6.3MPa; 3相380V50HZ | |||
| 适用温度℃ | 丁腈橡胶 | 硅橡胶 | 氟橡胶 | |
| -20-100 | -20-200 | -20-300 | ||
| 适用介质 | 煤气等有毒、有害、易燃气体 | |||
| 启闭时间S | ≤60 | |||
| 主要零部件材料 | 阀体、闸板为碳钢;丝杆为合金钢;螺母为锰铜合金、球墨铸铁;伸缩器为不锈钢 | |||

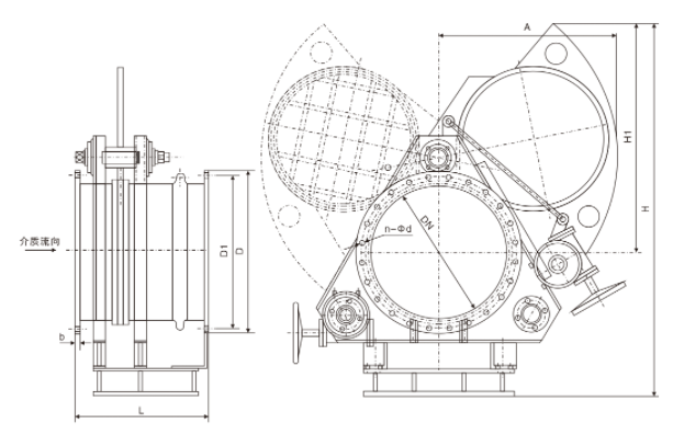
主要连接尺寸
| DN | L | D | D1 | H | H1 | A | b | n-d |
| 300 | 450 | 440 | 395 | 1200 | 380 | 480 | 22 | 12-22 |
| 350 | 450 | 490 | 445 | 1300 | 420 | 520 | 22 | 12-22 |
| 400 | 450 | 540 | 495 | 1400 | 560 | 580 | 22 | 16-22 |
| 450 | 500 | 595 | 550 | 1400 | 560 | 650 | 24 | 16-22 |
| 500 | 500 | 645 | 600 | 1480 | 600 | 800 | 24 | 16-22 |
| 600 | 600 | 755 | 705 | 1600 | 760 | 1000 | 24 | 20-26 |
| 700 | 600 | 860 | 810 | 1680 | 880 | 1050 | 26 | 24-26 |
| 800 | 800 | 975 | 920 | 1860 | 1125 | 1129 | 26 | 24-30 |
| 900 | 800 | 1075 | 1020 | 2055 | 1270 | 1242 | 28 | 24-30 |
| 1000 | 800 | 1175 | 1120 | 2240 | 1400 | 1375 | 30 | 28-30 |
| 1100 | 800 | 1275 | 1220 | 2425 | 1535 | 1510 | 30 | 28-30 |
| 1200 | 800 | 1375 | 1320 | 2620 | 1680 | 1625 | 30 | 32-30 |
| 1300 | 800 | 1475 | 1420 | 2760 | 1770 | 1749 | 30 | 32-30 |
| 1400 | 850 | 1575 | 1520 | 2960 | 1925 | 1856 | 32 | 36-30 |
| 1500 | 850 | 1690 | 1630 | 3105 | 2050 | 1976 | 32 | 36-30 |
| 1600 | 850 | 1790 | 1730 | 3300 | 2160 | 2093 | 32 | 40-30 |
| 1800 | 1100 | 1990 | 1930 | 3610 | 2370 | 2335 | 32 | 44-30 |
| 2000 | 1100 | 2190 | 2130 | 3960 | 2620 | 2570 | 32 | 46-30 |













