联系电话:
0551-63495066
产品详情
产品结构特征
整体焊接组合,不会有外部泄漏等现象,特别适合长输管线埋地工况和对外漏要求苛刻工况。广泛应用于城市燃气、城市供 热、石油化工、造船、钢铁、调压站、发电厂等各类管道设备上。
其主要结构特点有:
1、流阻小;
2、活塞座,防火安全,防静电设计;
3、对流向没有限制;
4、当阀门处于全开位置时,阀座表面是外部水流,始终与闸板完全接触,可以保护阀座 表面,适用于清管;
5、弹簧式盘根可选;
6、低排放填料可根据ISO 15848要求选择;
7、扩展设计可以选择;
8、金属对金属座椅设计可选
9、DBB,DIB-1,DIB-2结构可选;
10、球固定有支撑板和固定轴;
11、可以选择单焊或双焊设计。

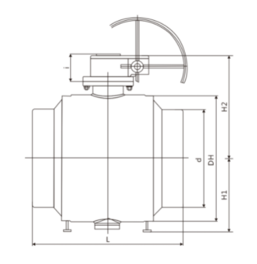
主要外形连接尺寸
| DN(mm) | 公称直径 | DH | d | t | L | H1 | H2 | 重量(Kg) |
| 600 | 600 | 1016 | 630 | 10 | 1143 | 650 | 860 | 2000 |
| 700 | 700 | 1130 | 720 | 10 | 1346 | 705 | 915 | 3100 |
| 800 | 800 | 1245 | 820 | 10 | 1524 | 770 | 1000 | 4700 |
| 900 | 900 | 1415 | 920 | 12 | 1727 | 855 | 1110 | 5700 |
| 1000 | 980 | 1555 | 1020 | 14 | 1840 | 925 | 1180 | 6600 |
| 1200 | 1166 | 1860 | 1220 | 16 | 2100 | 1075 | 1430 | 11000 |













