联系电话:
0551-63495066
产品概述
耐磨排渣阀主要应用于火力电站水利系统及水利工程的灰浆排放系统管路上,作切断或接通管路中灰水混合物,渣水混合物用。也可适用于矿山、造纸、化工等各类有磨损的干粉尘、水、蒸汽等介质在管道上作启闭之用。
产品特点
1、采用中法兰螺栓连接,支管两端为法兰连接或对焊连接。
2、启闭件采用半密封副强制密封,性能优良。
3、密封副材料为耐磨陶瓷或耐磨合金,耐磨性强,耐磨性强、耐用冲蚀、耐擦伤、摩擦力小、密封可靠。
4、阀体出口流道结型合理,不存渣,启闭灵活,不卡阻。
5、阀杆经调质和表面氮化处理,有良好的搞腐蚀性,抗擦伤性和耐磨性。
6、中大口径设置滚动轴承,启闭轻松。
主要性能规范
| 型号 | 公称压力 | 试验压力 | 适用温度 | 适用介质 | |
| 强度试验 | 密封试验 | ||||
| 1.6 | 2.4 | 1.8 | 22.0 | ≤100℃ | 灰水混合物、渣水比1:6 粒度<50mm |
| 2.5 | 3.8 | 2.8 | 27.5 | ||
| 4.0 | 6.0 | 4.4 | 35.2 | ||
| 6.4 | 9.6 | 7.1 | 22.0 | ||
主要零件的材料
阀 体 | WCB | |
阀 盖 | WCB | |
支 架 | WCB | |
闸 板 | WCB+耐磨合金 | WCB+陶瓷 |
阀 杆 | 2Cr13 | |
阀 座 | WCB+耐磨合金 | WCB+陶瓷 |
密封环 | 增强柔性石墨 | |
填 料 | 增强柔性石墨 | |
阀杆螺母 | ZCuA110Fe3 | |

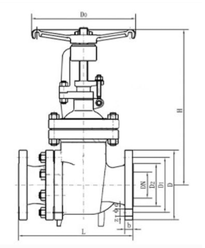
主要外形和连接尺寸(PN16/25)
| DN | L | D | D1 | D2 | b | z×d | f | H | H1 |
| 50 | 250 | 165 | 102 | 99 | 20 | 4×18 | 3 | 420 | 335 |
| 80 | 280 | 200 | 133 | 132 | 22 | 8×18 | 3 | 615 | 510 |
| 100 | 300 | 220 | 180 | 158 | 24 | 8×18 | 3 | 805 | 685 |
| 150 | 350 | 285 | 240 | 212 | 28 | 8×22 | 3 | 952 | 790 |
| 200 | 400 | 340 | 295 | 268 | 30 | 12×22 | 3 | 1085 | 885 |
| 250 | 450 | 405 | 355 | 320 | 32 | 12×26 | 3 | 1235 | 1015 |
| 300 | 500 | 460 | 410 | 370 | 34 | 12×26 | 4 | 1450 | 1190 |
| 350 | 550 | 520 | 470 | 430 | 38 | 16×26 | 4 | 1640 | 1350 |
| 400 | 600 | 580 | 525 | 482 | 40 | 16×30 | 4 | 1798 | 1460 |
| 450 | 650 | 640 | 585 | 532 | 44 | 21×30 | 4 | 1980 | 1620 |
| 500 | 700 | 715 | 650 | 585 | 46 | 20×33 | 4 | 2190 | 1800 |
主要外形和连接尺寸(PN40)
| DN | L | D | D1 | D2 | b | z×d | f | H | H1 |
| 50 | 250 | 165 | 125 | 88 | 20 | 4×18 | 3 | 444 | 340 |
| 80 | 310 | 200 | 160 | 121 | 22 | 8×18 | 3 | 636 | 508 |
| 100 | 350 | 235 | 190 | 150 | 24 | 8×22 | 3.5 | 930 | 680 |
| 150 | 450 | 300 | 250 | 204 | 30 | 8×26 | 3.5 | 984 | 800 |
| 200 | 550 | 375 | 320 | 260 | 38 | 12×30 | 3.5 | 1094 | 875 |
| 250 | 650 | 450 | 382 | 313 | 42 | 12×33 | 3.5 | 1270 | 1010 |
| 300 | 750 | 515 | 450 | 364 | 46 | 16×33 | 3.5 | 1470 | 1180 |
| 350 | 850 | 580 | 510 | 422 | 52 | 16×36 | 4 | 1555 | 1245 |
| 400 | 950 | 660 | 585 | 474 | 58 | 16×39 | 4 | 1650 | 1280 |
| 450 | 4050 | 685 | 610 | 524 | 60 | 20×39 | 4 | 1817 | 1415 |
| 500 | 1150 | 755 | 670 | 576 | 62 | 20×42 | 4 | 1990 | 1560 |
主要外形和连接尺寸(PN64)
| N | L | D | D1 | D2 | b | z×d | f | H | H1 |
| 50 | 250 | 180 | 135 | 88 | 26 | 4×22 | 3 | 444 | 340 |
| 80 | 310 | 215 | 170 | 121 | 30 | 8×22 | 3 | 636 | 508 |
| 100 | 350 | 250 | 200 | 150 | 32 | 8×26 | 3.5 | 830 | 680 |
| 150 | 450 | 345 | 280 | 204 | 38 | 8×33 | 3.5 | 984 | 800 |
| 200 | 550 | 415 | 345 | 260 | 44 | 12×36 | 3.5 | 1094 | 875 |
| 250 | 650 | 470 | 400 | 212 | 48 | 12×36 | 3.5 | 1270 | 1010 |
| 300 | 750 | 530 | 460 | 364 | 54 | 16×36 | 3.5 | 1470 | 1180 |
| 350 | 850 | 600 | 525 | 422 | 60 | 16×39 | 4 | 1555 | - |
| 400 | 950 | 670 | 585 | 474 | 66 | 16×42 | 4 | 1650 | 1280 |
| 450 | 1050 | 715 | 630 | 524 | 70 | 20×42 | 4 | 1817 | 1415 |
| 500 | 1150 | 800 | 705 | 476 | 76 | 20×48 | 4 | 1990 | 1560 |













